Progettare la connessione tra spazi e attività
ICOS BIGMAT è un punto di riferimento nel settore dell’edilizia in Piemonte, con oltre 40 anni di esperienza nella vendita di materiali per l’edilizia e finiture per interni. L’azienda si rivolge a professionisti, imprese e privati, offrendo un’ampia gamma di prodotti e servizi di alta qualità, con un’attenzione costante all’innovazione e all’efficienza.
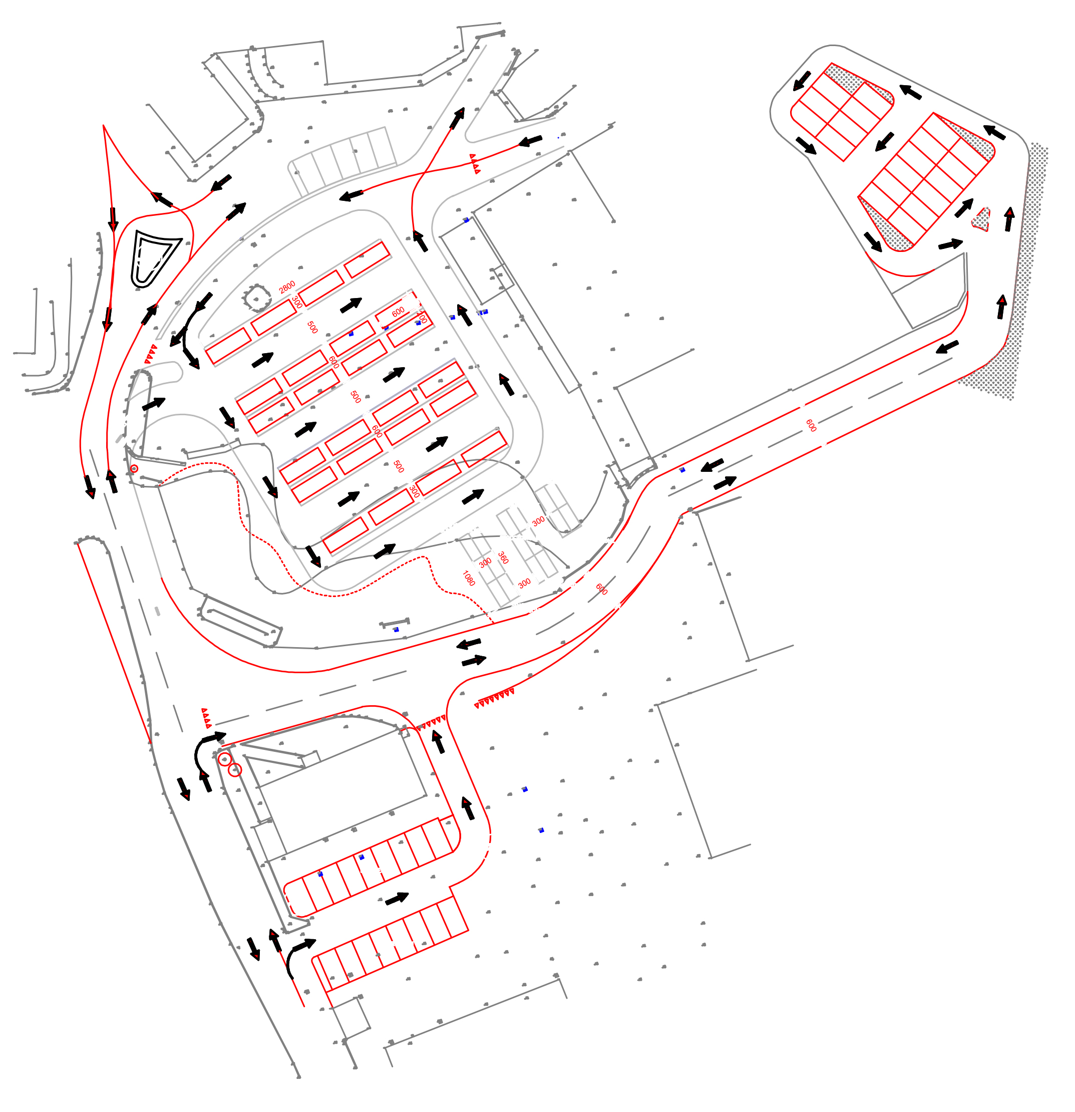
IL BISOGNO DEL CLIENTE. All’interno della cittadella dell’edilizia, ICOS ha espresso la necessità di migliorare la connessione e la fruibilità delle diverse aree operative, estese su 80.000 mq, attraverso un sistema integrato che ottimizzi spazi e servizi. Il progetto coinvolge l’intera struttura, ma la sfida principale riguarda la comunicazione efficace tra le diverse aree di attività, rendendole più accessibili e funzionali per professionisti e clienti privati.
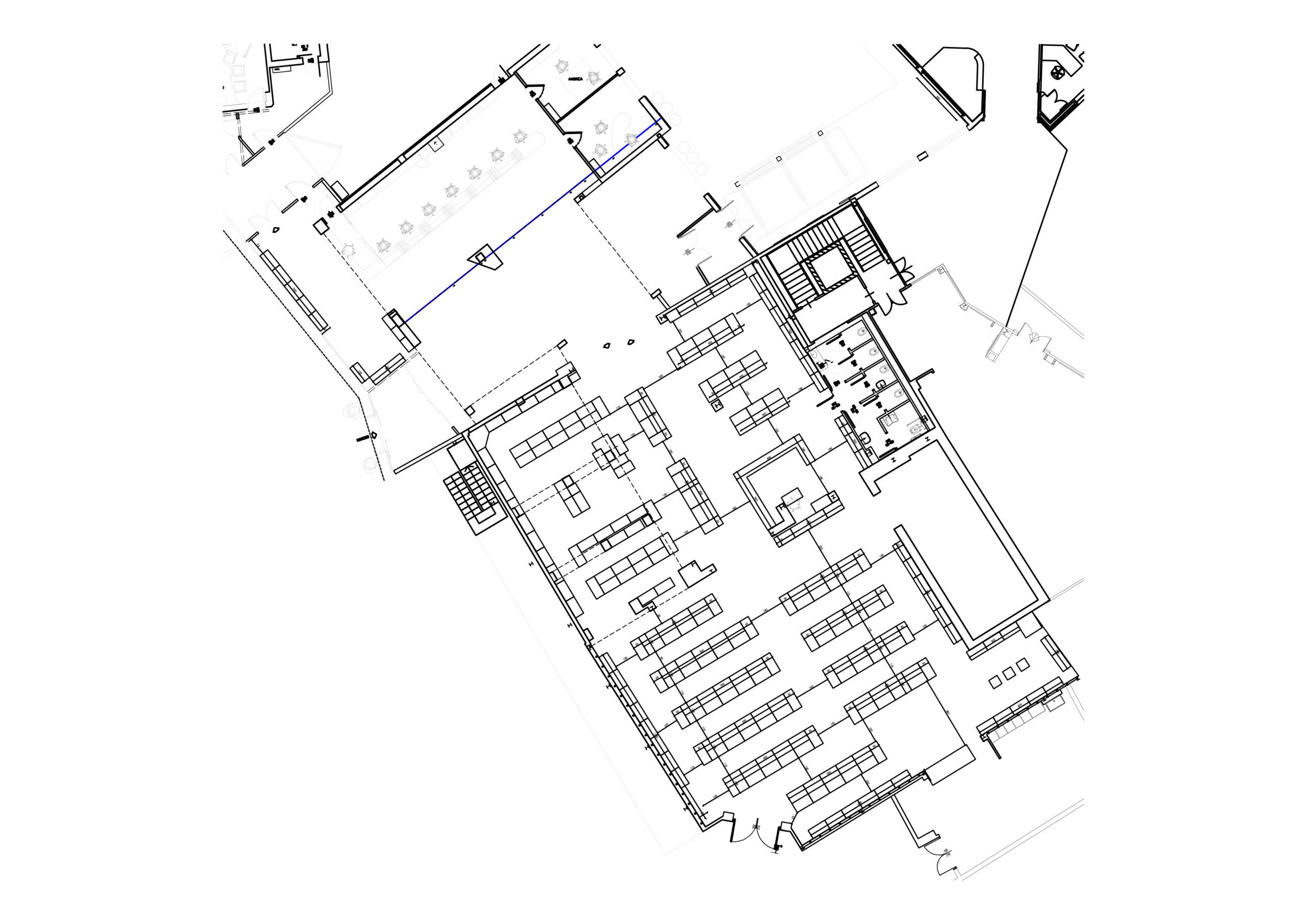
LA NOSTRA SOLUZIONE. La collaborazione con ICOS, avviata nel 2016, si è sviluppata in più fasi con l’obiettivo di migliorare la fruibilità degli spazi e valorizzare l’esperienza del cliente, intervenendo su diversi ambiti chiave dalla viabilità e gestione delle aree parcheggi con un’analisi approfondita dei flussi di traffico per ottimizzare l’accessibilità interna e per i clienti fino alla realizzazione dello schema progettuale alla progettazione del layout distributivo degli uffici con spazi funzionali pensati per un’accoglienza efficiente e un ambiente di lavoro ottimale fino alla connessione delle attività grazie a un sistema di segnaletica esterna chiaro ed efficace per individuare facilmente le aree dedicate a ecologia noleggio e ferramenta migliorando l’orientamento e la gestione dei flussi interni senza dimenticare il progetto dedicato al Centro Colore e Ferramenta che ha portato allo sviluppo di un layout innovativo e di una comunicazione settoriale mirata per valorizzare la visibilità dei prodotti e semplificare il percorso di acquisto ottimizzando l’esperienza del cliente all’interno del punto vendita grazie a questa strategia integrata ICOS ha potuto rafforzare il proprio ruolo di polo di riferimento per il settore edile migliorando la connettività tra le diverse aree e offrendo un’esperienza ottimizzata per tutti i suoi clienti.
👉 Hai bisogno di ottimizzare la connessione tra aree operative, flussi, spazi di vendita e servizi? Possiamo aiutarti a progettare sistemi integrati che migliorano orientamento, accessibilità e performance dei tuoi punti vendita. Contattaci per un confronto.
Cliente: BIGMAT ICOS
Progetto: OTTIMIZZAZIONE DEGLI SPAZI E CONNESSIONI
Website: https://icos.bigmat.it/











